ArchiLab

Архитект
София

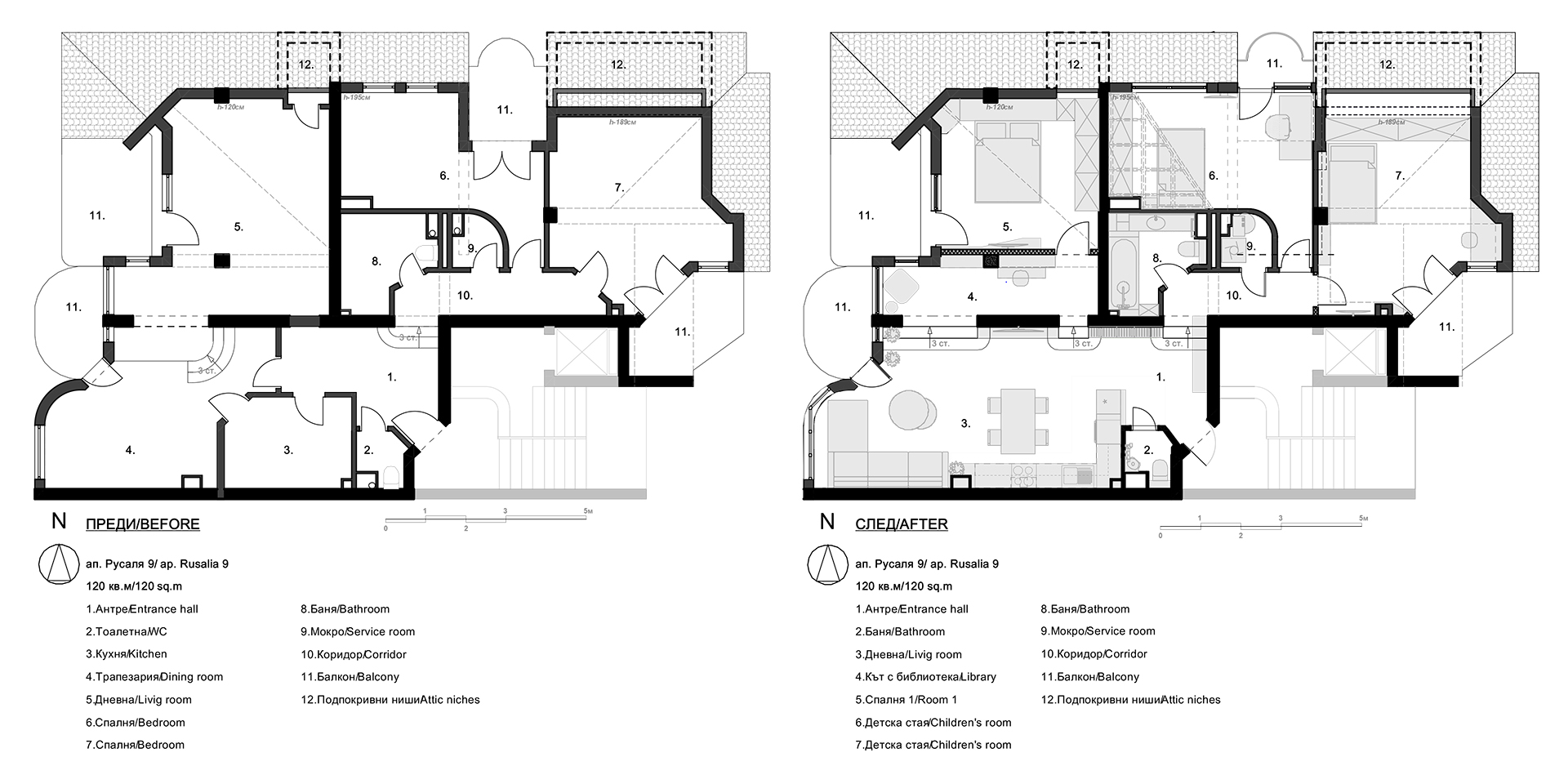
Ап. Русаля 9/ap. Rusalia 9

Трансформацията на мансардния апартамент на ул.Русаля в София беше архитектурно предизвикателство, заради нефункционално разпределение, множество чупки, скосявания и неизползваеми височини. Тези привидни пространствени недостатъци се превърнаха в основа на концепция и вдъхнаха неповторим характер и уют на жилището. Преосмислянето на зона „ден“ позволи обособяването на трета спалня и композиране на необичайна дневна. Превърнахме шайбата (TВ-зона) в ключов междинен елемент, който организира пространството и насочва движението между активната обща зона и по-интимния библиотечен кът на второ ниво. Вертикалната динамика е подчертана от единна композиция от стъпала, мебели и активен цвят, които създават усещане за дълбочина и сценография. Идеята за активния цвят е основна и в детските стаи, разгръщайки пространствени сценарии за сън, игра и учене чрез ясно зониране и скрити обеми за съхранение. В по-високата част на момчешката стая реализираме „мецанин“ от дървена конструкция – забавна зона за игра. В спалните наклоните на покрива са интегрирани в мебели по дизайн, превръщайки ограниченията в активен участник в дизайна и усвоявайки всяка начупена ниша в допълнителна складова площ. Едната баня реализираме в по-нежни тонове с естествено звучене – в хармония с родителската спалня, а малката баня за бърз душ е решена по-дръзко и изненадващо в съвременен стил. Заедно с наситените цветове в помещенията, се откроява и дървото, което хармонизира и затопля атмосферата. Задачата за ап.Русаля 9 със своите специфики и дефекти ни предостави възможност да създадем уникален интериорен проект, носещ в себе си както практичност и функционалност, така и изненадващ и запомнящ се характер. The transformation of the attic apartment on Rusalya Street in Sofia presented an architectural challenge due to its inefficient layout, numerous angles, sloping ceilings, and unusable heights. These apparent limitations became the foundation of the design concept, giving the home a distinctive character and sense of warmth. Reorganizing the daytime living zone allowed for the creation of a third bedroom and an unconventional living space. The TV unit was conceived as a key transitional element that structures the interior and guides movement between the active shared area and the more intimate library nook on the second level. Vertical dynamics are emphasized through a cohesive composition of steps, custom furniture, and a bold accent color, creating depth and a scenographic effect. The use of an active color is also central to the children’s rooms, shaping clear zones for sleeping, playing, and studying, supported by concealed storage. In the boy’s room, a wooden mezzanine structure introduces an elevated play area. In the bedrooms, the roof slopes are integrated into custom-designed furniture, turning constraints into active design features and maximizing storage in every niche. One bathroom is designed in soft, natural tones in harmony with the parents’ bedroom, while the smaller bathroom for quick showers is executed in a bolder contemporary style. Wood, combined with saturated colors, plays a key role in warming and balancing the interior. The specific challenges of Apartment Rusalya 9 enabled the creation of a unique interior that combines functionality with a memorable and expressive character.

  • 19.12.2025
  • 17

ArchiLab

Архитект
София