Design Side

Интериорен дизайнер
Пловдив

Apartment Spring green/ Апартамент "Пролетно зелено"

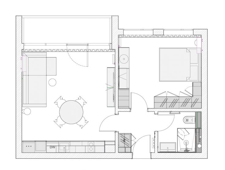
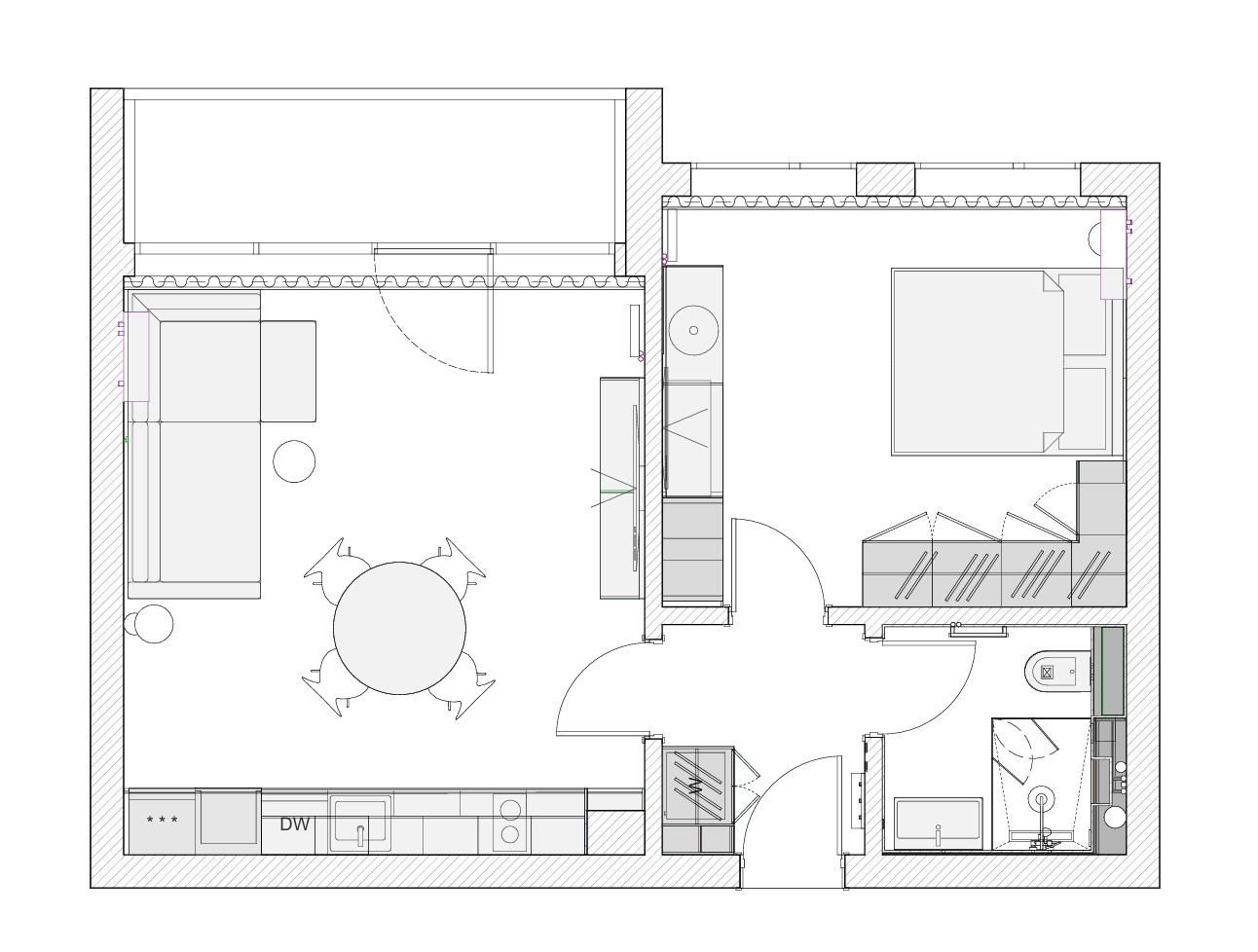
Още от самото начало клиентът настояваше в интериора да присъстват добре познатите ламели. Причината е ясна. Хората харесват този композиционен ритъм, защото са свикнали с него и го възприемат като балансиран и хармоничен. Нашето решение беше да запазим ритъма на линията, но да трансформираме нейния утвърден облик и да създадем собствен прочит. Проектът ни постави пред няколко ключови предизвикателства. Основното беше да осигурим максимално пространство за съхранение, без това да натоварва визуално интериора. В коридора реализирахме огледален гардероб, който дискретно скрива пералнята и други битови елементи, необходими за ежедневието на всеки дом. В спалнята проектирахме голям Г образен гардероб с вградена затворена ниша за книги. Това решение ни позволи да избегнем визуалния шум, характерен за отворените системи за съхранение. Вярваме, че дори малките пространства се нуждаят от ясно изразени дизайнерски акценти. Именно затова включихме емблематично нощно шкафче от рециклирана пластмаса на фабрика Kartell, с дизайн, създаден преди повече от 60 години. В спалнята присъстват и сини аплици, изработени от нас и боядисани в цвят, който кореспондира с цялостната цветова концепция на интериора. Зеленият цвят се превърна във водещ елемент в пространството, а сините акценти добавиха свежест и динамика. Интериорът е изграден с изключително внимание към детайла. Всички снадки между стена и мебел са прецизно запълнени. Липсват лайсни както в банята, така и в кухнята. Преходът между различните настилки е изпълнен с течен корк, което допринася за чистото и последователно визуално въздействие. В този проект всяка линия следва своето логично място, а детайлът допълва и подчертава чистотата на формата./ From the very beginning, the client insisted on incorporating the familiar slatted elements into the interior. The reason is clear. This compositional rhythm is widely appreciated because it feels familiar, balanced, and harmonious. Our approach was to preserve the rhythm of the line while transforming its established appearance and creating our own interpretation. The project presented several key challenges. The primary one was to provide maximum storage without visually overloading the interior. In the hallway, we designed a mirrored wardrobe that discreetly conceals the washing machine and other everyday household necessities. In the bedroom, we created a large L shaped wardrobe with an integrated closed niche for books. This solution allowed us to avoid the visual noise typically associated with open storage systems. We believe that even small spaces deserve clearly defined design accents. For this reason, we included an iconic bedside table made of recycled plastic by Kartell, featuring a design created more than 60 years ago. The bedroom also features blue wall sconces crafted by our studio and finished in a color that aligns with the overall color concept of the interior. Green became the leading color throughout the space, while blue accents introduced freshness and a sense of dynamism. The interior is executed with great attention to detail. All junctions between walls and furniture are precisely finished. Skirting boards are intentionally omitted in both the bathroom and the kitchen. The transition between different flooring materials is executed with liquid cork, reinforcing the clean and continuous visual language. In this project, every line follows its logical place, and each detail complements and enhances the clarity of the form.

  • 09.11.2025
  • 364

Design Side

Интериорен дизайнер
Пловдив