ADESIGN Interiors

Студио за интериорен дизайн
София

Modern Organic/ Модърн Органик

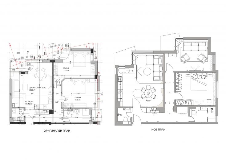
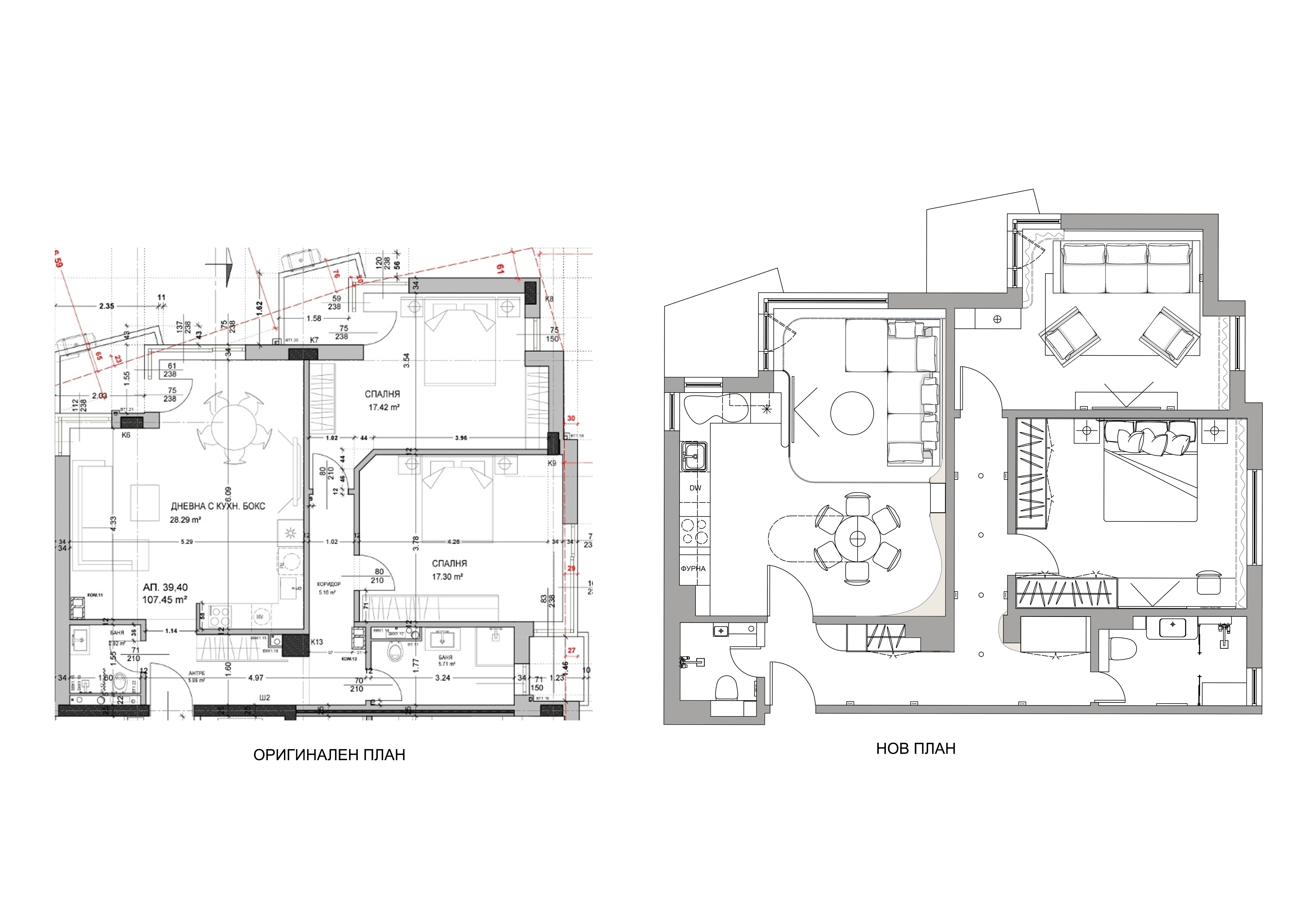
Проектът „Модерн Органик“ е замислен като съвременна интерпретация на органичния дизайн – естетика, която хармонично съчетава суровата, тактилна красота на естествените материали с изчистен съвременен архитектурен език. Апартаментът въплъщава тази философия, предлагайки спокойно и балансирано убежище от динамиката на градския живот. Меките линии, заоблените геометрии и приглушената неутрална цветова палитра създават усещане за тиха елегантност, топлина и хармония. В основата на проекта стои идеята за плавно движение. Целта не беше просто функционално свързване на помещенията, а създаване на непрекъснато пространствено преживяване, при което преходите се усещат естествени и интуитивни. Движението в апартамента наподобява пътешествие през пясъчен каньон – оформен от времето, омекотен от ерозията и дефиниран от плавни извивки, а не от резки граници. Всяко пространство преминава естествено в следващото, насърчавайки по-бавен и осъзнат начин на обитаване. За да подкрепим тази концепция, първоначалното разпределение беше преосмислено. Кухнята и дневната зона размениха местата си, което позволи основните жилищни пространства да се възползват от повече естествена светлина и по-добри пропорции. Тази промяна веднага подобри усещането за отвореност и лекота в апартамента. Кухнята вече се вписва безпроблемно в дневната среда, превръщайки се в част от единно социално пространство, а не в изолирана функционална зона. Ключов архитектурен елемент в дневната е декоративната заоблена стена, проектирана едновременно като визуален акцент и мек пространствен разделител. Скулптурната ѝ форма нежно води погледа към зоната с дивана, подсилвайки усещането за движение и непрекъснатост. В стената са интегрирани гипсови луни на ACA Light – технически предизвикателно решение заради сложната извивка на повърхността. Осветлението е дискретно и атмосферно, подчертава формата на стената и създава мека, разсеяна светлина в пространството. Този заоблен елемент естествено оформя и трапезарната зона, създавайки усещане за интимност без необходимост от плътни прегради. Допълнителни органични форми, като ТВ стената и специално проектираният таван над дивана, допринасят за цялостния характер на интериора. Всички тези елементи позволяват ясно зониране на дневната, като същевременно запазват плавния и единен поток на пространството. Материалната палитра в целия апартамент е умишлено сдържана, като акцентът е поставен върху текстурите, а не върху контрастите. Земни тонове, естествени каменни повърхности, топли дървесни облицовки и тактилни текстили работят в хармония, за да създадат дълбочина и уют. Всеки материал е подбран така, че да кани към допир и да обогатява сетивното възприятие на дома. В коридора концепцията за органично движение продължава без прекъсване. Вместо да бъде просто преходно пространство, той се превръща в преживяване сам по себе си. Част от коридора, водещ към мокрото помещение, е заоблена, което елиминира резките преходи и поддържа визуалната последователност. Това решение допринася за цялостното усещане за спокойствие и хармония. Отличителни акценти в тази зона са извитите арки с мъх, които въвеждат жив биофилен елемент в интериора. Внимателно слоеното осветление подчертава текстурите и създава релаксираща атмосфера, докато падналият таван във втория коридор добавя ритъм и интимност. Бамбуковият тапет обогатява пространството с допълнителна тактилност и затвърждава връзката с природата. По-тъмната земна цветова гама засилва усещането за заземяване и вътрешен баланс, напомняйки за дзен спокойствие. Основната баня е проектирана като лично уелнес пространство. Тук различни естествени текстури – дърво, камък и минерални повърхности – се съчетават в балансирана и елегантна композиция. Зелен акцент над тоалетната омекотява пространството и визуално го свързва с биофилните елементи в останалата част на дома. Благодарение на наличието на прозорец, в душ зоната е вградена пейка, която превръща ежедневния ритуал в СПА изживяване и насърчава релаксацията. Тоалетната за гости следва същите естетически принципи, но в по-семпла и минималистична интерпретация. Доминират пясъчни тонове, допълнени от фини зелени акценти, които създават визуална връзка с останалата част от интериора. Спалнята продължава разказа за апартамента като земно убежище. Топли дървесни нюанси, меки материи и естествени повърхности изграждат атмосфера на комфорт и уединение. Голям фототапет с плавни извивки визуално разширява пространството и засилва усещането за лекота и спокойствие. Интериорът е замислен така, че да насърчава почивката, баланса и откъсването от външния свят. Кабинетът е решен в по-тъмна и обгръщаща цветова палитра. Тази умишлена промяна в настроението създава ясно разграничение от останалите помещения и подпомага концентрацията и творческия процес. Пространството е проектирано да вдъхновява мисълта и фокуса, без да губи усещането за топлина и характер. В крайна сметка проектът „Модерн Органик“ е много повече от естетическа концепция. Това е внимателно изграден жизнен среда, която поставя в центъра емоционалния комфорт, сетивното богатство и дълбоката връзка с природата. Чрез въвеждането на органични форми и естествени материали в интериора, домът се превръща в пространство, което „диша“, вдъхновява и успокоява. Това е визия за съвременен начин на живот, воден не от излишък, а от осъзнатост, баланс и душа. ...................................................................................................................... The “Modern Organic” project is conceived as a contemporary interpretation of organic design—an aesthetic that harmoniously blends the raw, tactile beauty of natural materials with clean, modern architectural language. The apartment embodies this philosophy by offering a calm, grounded retreat from the pace of urban life. Soft lines, rounded geometries, and a muted, neutral palette work together to create an atmosphere of quiet sophistication, warmth, and balance. At the heart of the project lies the idea of fluid movement. The goal was not merely to connect rooms functionally, but to create a continuous spatial experience where transitions feel natural and intuitive. Movement through the apartment is meant to resemble a journey through a sandy canyon—shaped by time, softened by erosion, and defined by gentle curves rather than sharp boundaries. Each space flows seamlessly into the next, encouraging a slower, more mindful way of inhabiting the home. To support this concept, the original layout was reimagined. The kitchen and living area were repositioned, allowing the primary living spaces to benefit from increased natural light and improved spatial proportions. This change immediately enhanced the openness of the apartment and reinforced the sense of airiness that defines the project. The kitchen now integrates effortlessly into the living environment, becoming part of a unified social zone rather than a separate, enclosed function. A key architectural feature of the living space is the decorative curved wall, designed as both a visual guide and a spatial divider. Its sculptural form gently leads the eye toward the sofa area, reinforcing the idea of motion and continuity. Embedded within this wall are custom plaster recessed lights by ACA Light—a technically demanding solution due to the complex curvature of the surface. The lighting is subtle and atmospheric, accentuating the wall’s form while maintaining a calm, diffused glow throughout the space. This curved element also naturally defines the dining area, creating a sense of enclosure without the need for solid partitions. Additional rounded features, such as the TV wall and the custom ceiling design above the sofa, further strengthen the organic language of the interior. Together, these elements allow the living room to be clearly zoned while preserving a soft, cohesive spatial flow. The material palette throughout the apartment is intentionally restrained, relying on textures rather than contrasts for visual interest. Earthy tones, natural stone finishes, warm wood surfaces, and tactile textiles work in unison to create depth and comfort. Every surface is selected to invite touch and enhance the sensory experience of the home. In the corridor, the concept of organic movement continues seamlessly. Rather than functioning as a purely transitional space, the hallway becomes an experiential element of the interior. Part of the corridor leading toward the wet area is softly rounded, reinforcing visual continuity and eliminating abrupt transitions. This design choice contributes to the overall sense of calm and cohesion. Distinctive features in this area include curved arches accented with moss, which introduce a living, biophilic element into the space. Carefully layered lighting enhances the textures and creates a tranquil ambiance, while a lowered ceiling in the secondary corridor adds rhythm and intimacy. Bamboo wallpaper further enriches the tactile quality of the space, reinforcing the connection to nature. The darker, earth-based color palette enhances the feeling of grounding and introspection, evoking a subtle sense of zen. The main bathroom is designed as a private wellness retreat. Here, various natural textures—wood, stone, and mineral finishes—are combined in a balanced and refined composition. A green accent panel above the toilet introduces color and softness, echoing the biophilic elements found throughout the apartment. Because the bathroom benefits from natural daylight through a window, the design allowed for the inclusion of a built-in bench within the shower area. This element transforms the daily ritual of bathing into a spa-like experience, encouraging relaxation and presence. The guest toilet follows the same aesthetic principles but in a more restrained manner. Sandy tones dominate the space, complemented by subtle green accents that tie it visually to the rest of the home. The result is a calm, understated interior that feels intentional and cohesive despite its smaller scale. The bedroom continues the narrative of the apartment as an earth-inspired sanctuary. Warm wood tones, soft fabrics, and natural finishes create an atmosphere of comfort and retreat. A large wall mural featuring gentle, flowing curves visually expands the space, enhancing the sense of openness and serenity. The design encourages rest, balance, and disconnection from external distractions. The home office is intentionally designed in a darker, more enveloping palette. This shift in tone establishes a clear distinction from the rest of the apartment while supporting focus and creativity. The space is meant to inspire thought and concentration, offering a refined environment for work without sacrificing warmth or character. Ultimately, the “Modern Organic” project is about more than aesthetics. It is a carefully curated living environment that prioritizes emotional well-being, sensory richness, and a deep connection to nature. By inviting organic forms and natural materials indoors, the apartment becomes a place that breathes—offering comfort, inspiration, and tranquility. It is a vision of modern living defined not by excess, but by intention, balance, and soul.

  • 09.01.2026
  • 66

ADESIGN Interiors

Студио за интериорен дизайн
София