Ivelina Arsova

Интериорен дизайнер
Пловдив

N&K

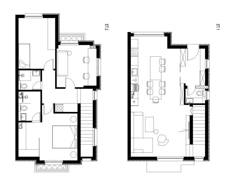
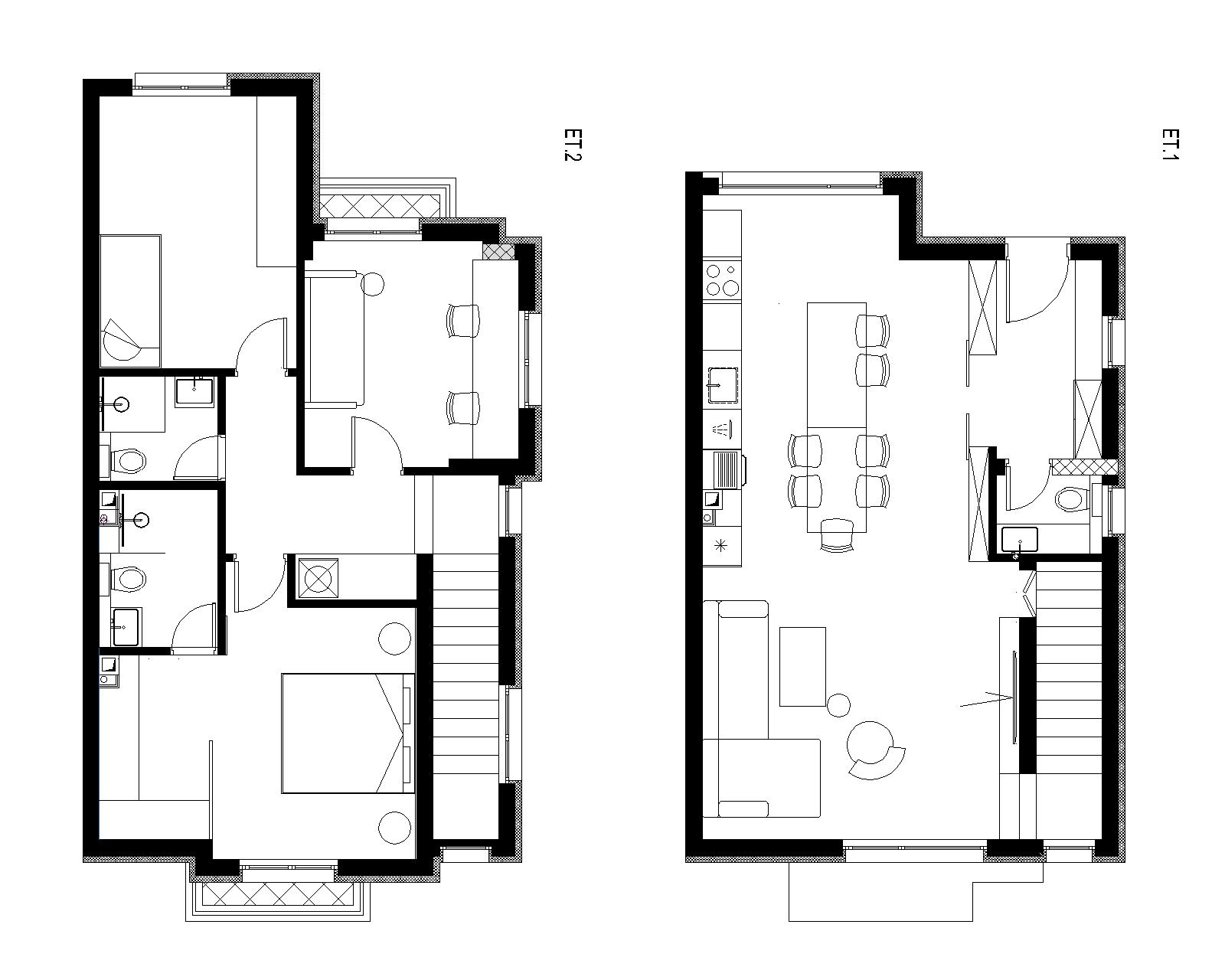
Проектът представлява цялостна трансформация на двуетажна къща, насочена към оптимизация на пространството, светлината и функционалността за нуждите на младо семейство. На първия етаж основният архитектурен жест е отварянето на дневната зона чрез разширен портал към всекидневната и освобождаване на стълбището за повече естествена светлина и вертикален въздух. Преосмислихме разпределението – кухнята и меката мебел размениха местата си, което позволи директен излаз към верандата и естествено разширяване на дома навън. Това даде възможност за добавяне на кухненски остров – ключов елемент, който обединява функционалност, социалност и визуален фокус. На втория етаж оптимизирахме пространствата чрез усвояване на част от родителската спалня и създаване на независим килер със пералня, сушилня и бойлер. Променихме входа на родителската баня, така че да осигурим пълен визуален комфорт и интимност от зоната за сън. Осветлението е проектирано със сценарийни режими, позволяващи на дома да променя атмосферата си според нуждите – от функционално до спокойно и акцентно. Материалната концепция е изградена изцяло върху естествено усещане и спокойствие: подова микроминерална мазилка като основа, допълнена от топли дървесни вертикали. Палитрата е светла, минималистична и скандинавски чиста – фокусирана върху пространство, светлина и баланс, без визуален шум. Интериорът съчетава непретенциозна елегантност и дълготрайна функционалност, подходяща за динамичния ритъм на младото семейство. The project represents a complete transformation of a two-storey house, focused on optimizing space, natural light, and functionality to meet the needs of a young family. On the ground floor, the main architectural gesture is the opening of the living area through an expanded portal and the release of the staircase to bring in more daylight and vertical openness. The layout was reconfigured by swapping the positions of the kitchen and the seating area, allowing direct access from the kitchen to the veranda and naturally extending the home outdoors. This redesign enabled the addition of a kitchen island – a key element that combines functionality, social interaction, and a strong visual anchor. On the upper floor, the space was optimized by incorporating part of the primary bedroom to create an independent utility room housing the washing machine, dryer, and boiler. The entrance to the primary bathroom was shifted to ensure complete visual comfort and privacy from the sleeping area. The lighting concept is designed with programmable scenarios, allowing the home to adapt its atmosphere as needed – from functional to calm and accent-lit. The material palette is built around a sense of natural warmth and tranquility: micro-mineral flooring as a base complemented by warm wooden verticals. The tones are light, minimalist, and Scandinavian in spirit – emphasizing space, light, and balance without visual noise. The interior blends understated elegance with long-term practicality, tailored to the dynamic rhythm of the young family.

  • 15.12.2025
  • 156

Ivelina Arsova

Интериорен дизайнер
Пловдив