FRAME Architecture/Design

Архитект
Пловдив

ПЕКАРНА ДЪГЛОВ / DAGLOV BAKESHOP

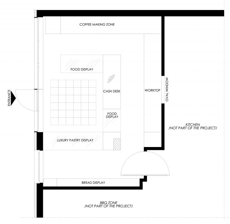
В този проект уловихме традицията и дългогодишния семеен опит на пекарите, като създадохме пространство, което подчертава както историята, така и самите печива. Използвахме тъмна основа – черни стени, тавани и тъмно дърво – като фон, върху който изпъкват естествени материали и детайли, вдъхновени от Родопите и българските корени. Мотивите в плочките, бронзовите акценти в лампите, нажежаемите крушки, декоративната пшеница и плетът от бамбук на тавана допринасят за усещане за автентичност. Печивата са основният акцент в търговската зона. Ключов момент е стената зад касата – символ на връзката между клиент и пекар. Кръгъл отвор с прозорец разкрива поглед към кухнята, а около него художник изобрази самия пекар в процес на работа. Проектът вплита история и традиция във всеки детайл. In this project we captured the tradition and long-standing family craft of the bakers, creating a space that highlights both their heritage and the baked goods themselves. We used a dark base—black walls, ceilings, and dark wood—as a backdrop enriched by natural materials inspired by the Rhodope region and Bulgarian traditions. Tile motifs, bronze accents in the lighting, filament bulbs, decorative wheat, and a bamboo weave on the ceiling add authenticity. The baked goods become the central focus of the interior. A key feature is the wall behind the counter, symbolizing transparency between customer and baker. A circular window offers a glimpse into the kitchen, framed by an artist’s depiction of the baker loading the oven. The entire project weaves history and tradition into every corner.

  • 23.11.2025
  • 65

FRAME Architecture/Design

Архитект
Пловдив