Studio Hi

Студио за интериорен дизайн
София

Skin Club - реализация

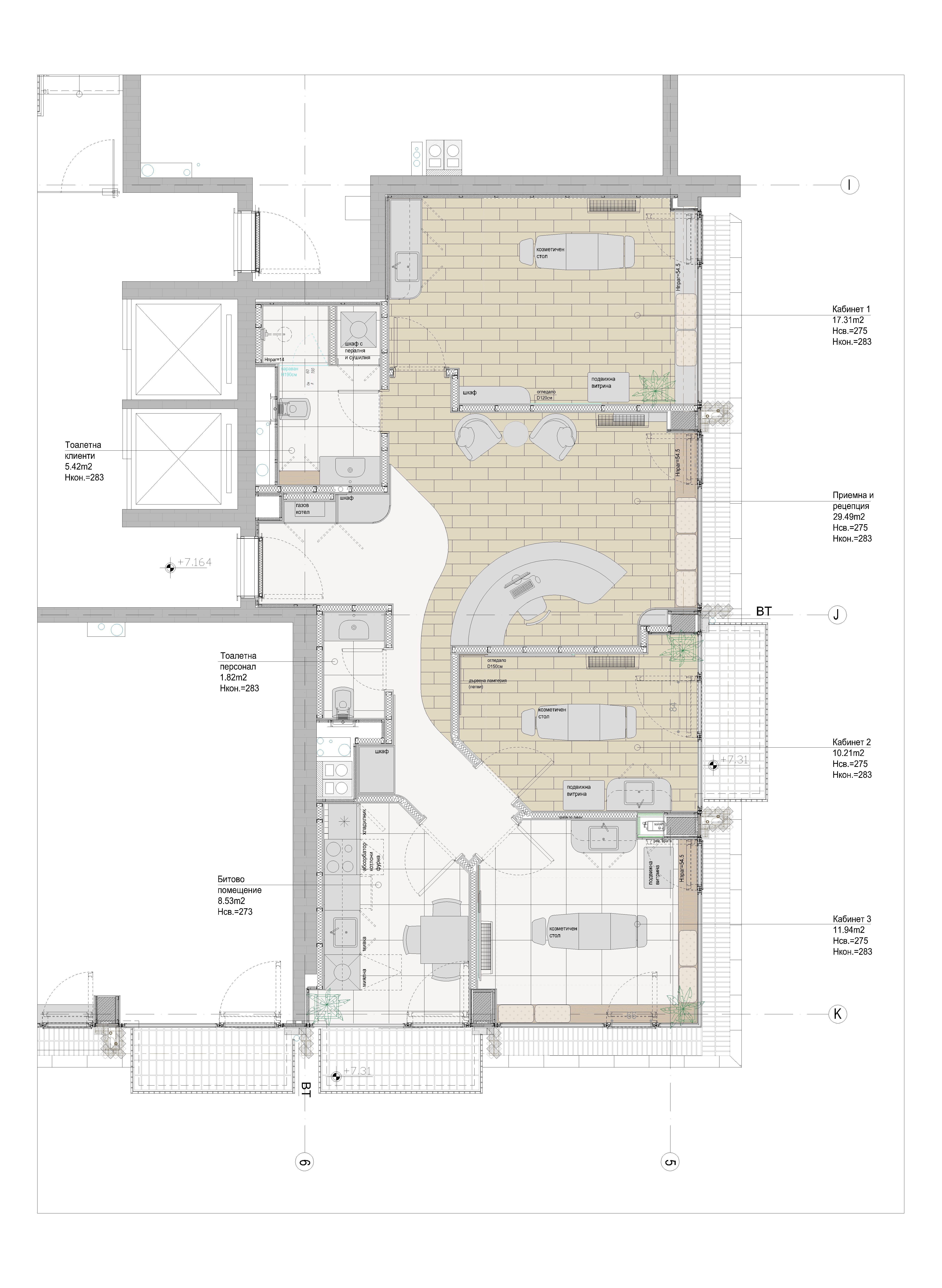
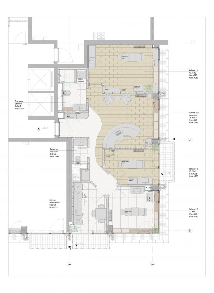
Интериорът на SKIN CLUB е замислен като пространство, където грижата за себе си среща натуралната естетика на съвременния дизайн, чрез фокус върху топлина, естествени материали и усещане за фин лукс. Пространството е моделирано от естествената светлина, допълнена от дискретни LED акценти, които подчертават плавните архитектурни линии. Настилките комбинират два материала, подбрани както за естетика, така и за функционалност. Микроциментът осигурява минималистична визия с монолитна, безфугова повърхност, която носи усещане за чистота и непрекъснатост. Той е изключително устойчив на износване и влага, което го прави подходящ за медицинска среда. Виниловата настилка в топъл дървесен фурнир добавя комфорт, акустична мекота и естествено излъчване. Стените са облечени в МДФ ламперии с огънати и заоблени форми, които носят плавност и органика. В комбинация с екологичните варови мазилки – дишащи, естествени и с уникална матова текстура – те създават хармонична, здравословна и визуално спокойна среда. Проектът търси фин баланс между професионална чистота и емоционален уют. SKIN CLUB е пространство, което вдъхва доверие и предразполага чрез естествена естетика, ръчно изработени повърхности и внимателно моделирана светлина – място, където грижата за кожата започва със спокойствието на самото пространство. The interior of SKIN CLUB is conceived as a space where self-care meets the natural aesthetics of contemporary design, with a focus on warmth, natural materials, and a sense of subtle luxury. The space is shaped by natural light, complemented by discreet LED accents that highlight the smooth architectural lines. The flooring combines two materials chosen for both aesthetics and functionality. Microcement provides a minimalist look with a monolithic, seamless surface that conveys a sense of cleanliness and continuity. It is highly resistant to wear and moisture, making it suitable for a medical environment. The vinyl flooring in a warm wood veneer adds comfort, acoustic softness, and a natural expression. The walls are clad in MDF paneling with curved, rounded forms that bring softness and organic flow. Combined with ecological lime plasters—breathable, natural, and with a unique matte texture—they create a harmonious, healthy, and visually calming environment. The project seeks a fine balance between professional purity and emotional comfort. SKIN CLUB is a space that inspires trust and puts visitors at ease through natural aesthetics, handcrafted surfaces, and carefully sculpted light— a place where skincare begins with the tranquility of the space itself.

  • 20.11.2025
  • 83

Studio Hi

Студио за интериорен дизайн
София