EN-TRE Studio

Архитект
София

ROHA CAPE - РОХА КЕЙП

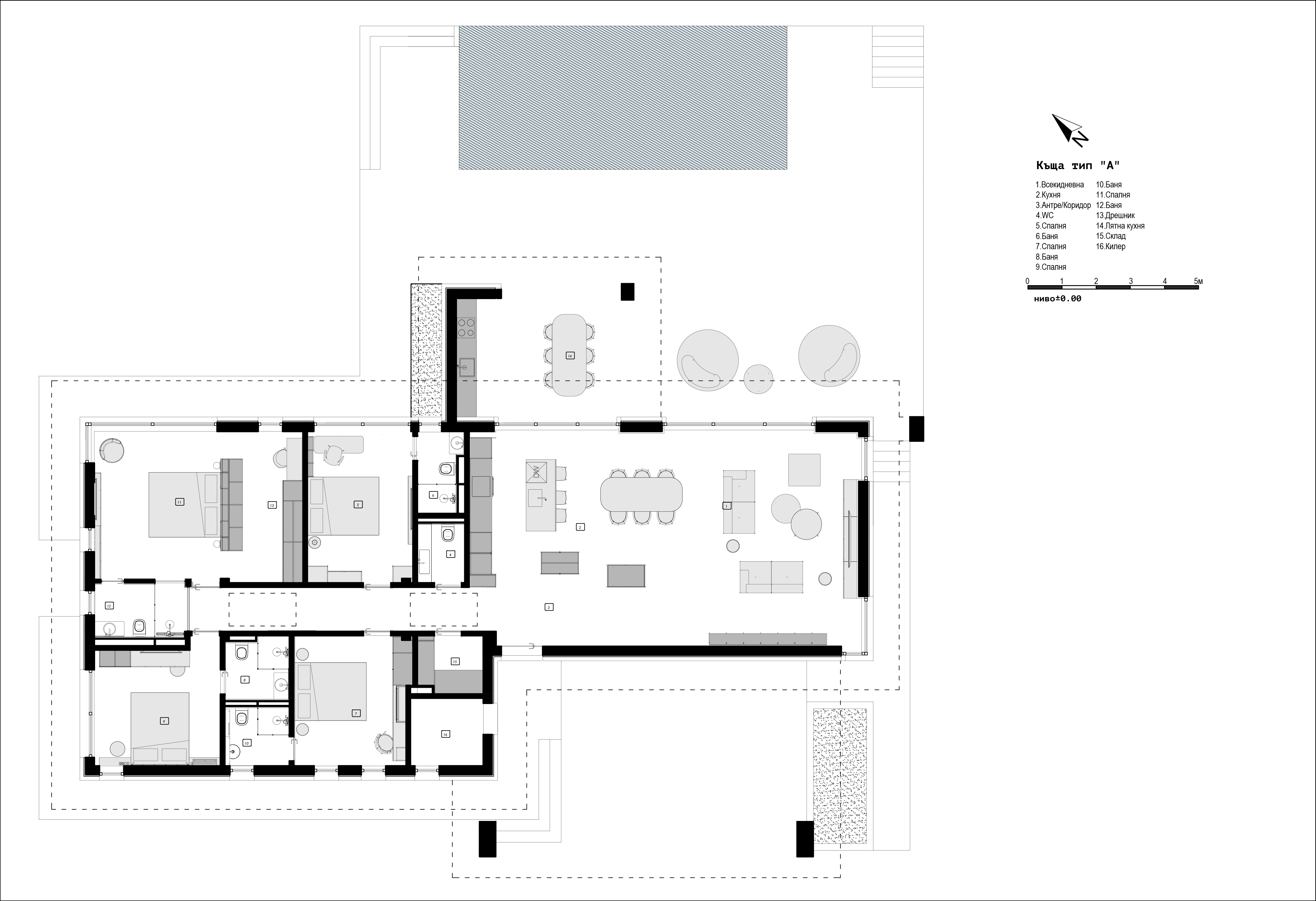
Проектът е колаборация със студио Бахатуров. Ваканционната къща е част от ансамбъла Roha Cape Villas, разположен до плажа Нестинарка близо до гр. Царево. Площта на тази едноетажна къща е 230кв.м. Интериорът се развива около идеята за пълноценна връзка между вътрешното пространство и морския пейзаж, именно гледката е основния композиционен елемент. Дневната зона е проектирана като отворено, светло пространство, изцяло ориентирано към морето. Панорамните плъзгащи се остъклявания заличават границата между интериор и екстериор, превръщайки пейзажа в постоянен визуален фон. Подовата настилка преминава към верандата и зоната на басейна, което визуално разширява дневната и подсилва усещането за непрекъснатост. Материалната палитра е ограничена и внимателно подбрана - естествен камък, дърво и земни пастелни тонове, които подчертават светлината и гледките, без да доминират над тях. Каменните облицовки присъстват както като акцентни стени в интериора, така и като свързващ елемент с екстериора, създавайки усещане за устойчивост и принадлежност към мястото. Дървените таванни облицовки в дневната продължават към покритата лятна кухня, като подсилват идеята за единно пространство за обитаване и отдих. Спалните са проектирани като спокойни, интимни пространства, ориентирани към морето или вътрешния двор. Характерните текстури, цветове и акцентни решения на мебелния дизайн създават индивидуалността на всяко пространство, включително на светлия коридор и баните. Интериорът постига баланс между съвременния комфорт и силната връзка с природната среда, превръщайки къщата в завършено и функционално пространство за обитаване и почивка. EN The project was developed in collaboration with Bahaturov Studio. The holiday house is part of the Roha Cape Villas ensemble, located near Nestinarka Beach, close to the town of Tsarevo. This single-storey residence has a total area of 230 sq m. The interior concept is centered around creating a strong connection between the indoor spaces and the surrounding seascape, with the view acting as the primary compositional element. The living area is designed as an open, light-filled space fully oriented toward the sea. Panoramic sliding glazing eliminates the boundary between interior and exterior, turning the landscape into a constant visual backdrop. The floor finish extends seamlessly toward the veranda and pool area, visually enlarging the living space and reinforcing the sense of continuity. The material palette is restrained and carefully curated, featuring natural stone, wood, and earthy pastel tones that enhance light and views without competing with them. Stone cladding appears both as interior accent walls and as a linking element to the exterior, creating a sense of permanence and connection to the site. Wooden ceiling finishes in the living area continue into the covered outdoor kitchen, further emphasizing the idea of a unified living and leisure environment. The bedrooms are conceived as calm, intimate spaces oriented either toward the sea or the inner courtyard. Distinct textures, colors, and furniture accents define the identity of each area, including the bright corridor and the bathrooms. The interior achieves a balanced relationship between contemporary comfort and a strong connection to the natural surroundings, resulting in a cohesive and functional retreat for living and relaxation.

  • 18.11.2025
  • 119

EN-TRE Studio

Архитект
София