EN-TRE Studio

Архитект
София

HOUSE RCV-B

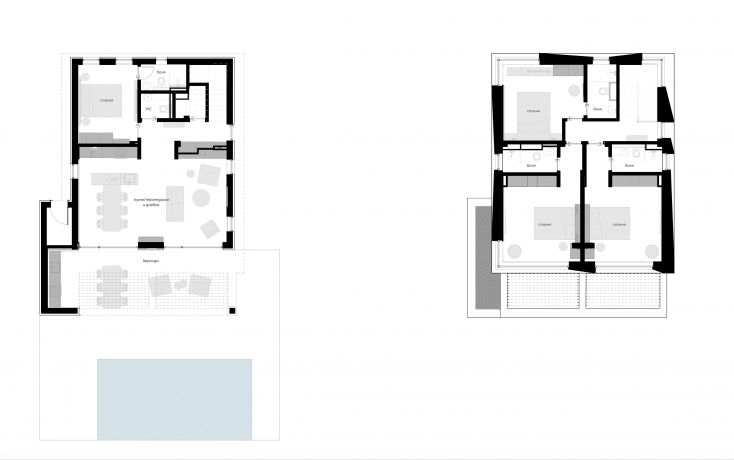
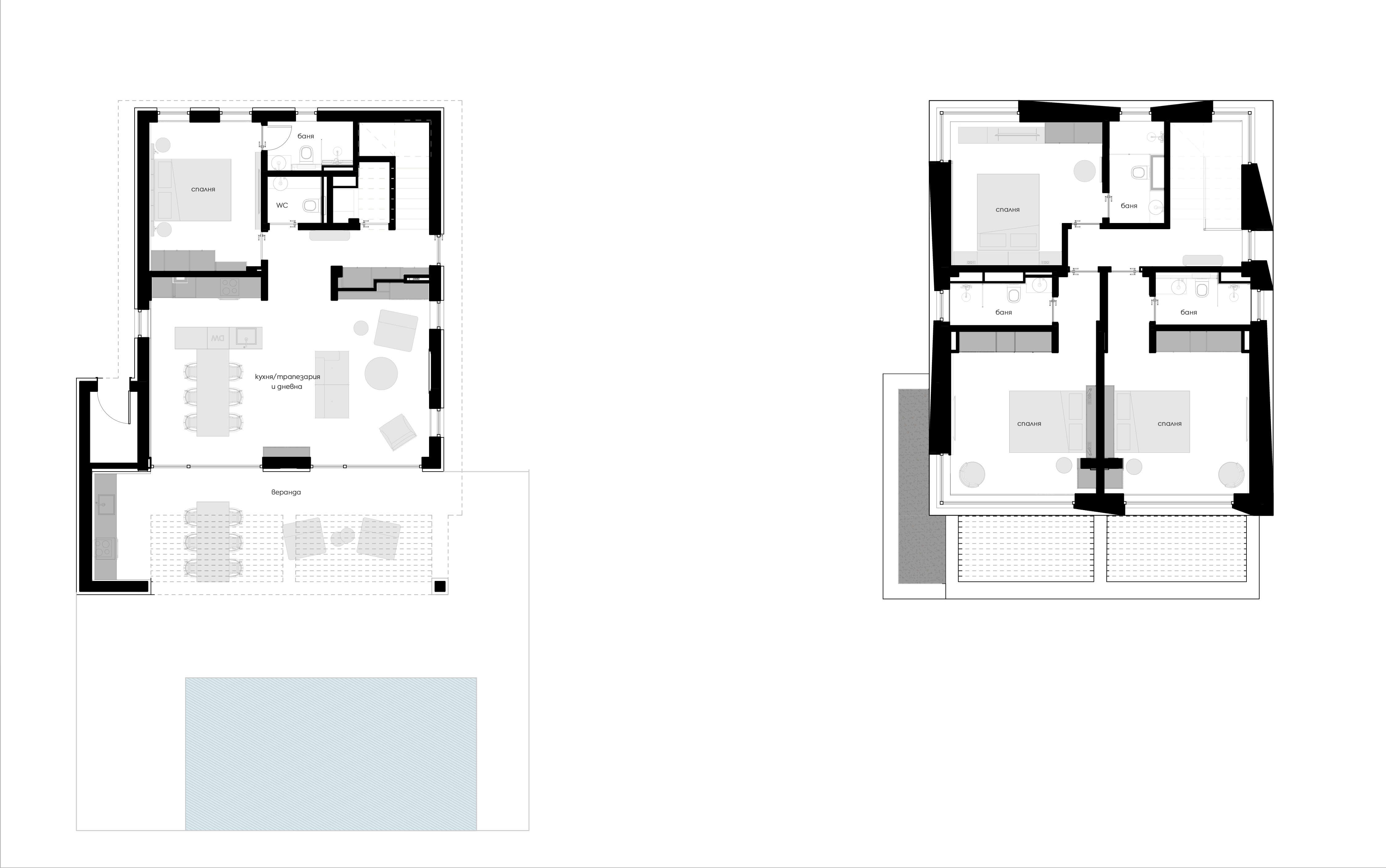
Разработен съвместно със СТУДИО БАХАТУРОВ Roha Cape Villas е ансамбъл от четири ваканционни къщи, разположени до един от най-живописните плажове на българското Черноморие – Нестинарка. Комплексът заема върха на нос Рохи, където скалистият бряг среща морето, а панорамата се разгръща в безкраен хоризонт. Четирите къщи са разположени терасовидно по денивелацията на терена, така че всяка има непрекъсната гледка към морето. Най-източната е едноетажна – нисък, хоризонтален обем, който запазва силуетната линия на брега. Останалите три са идентични двуетажни къщи, разположени стъпаловидно назад в посока запад. Достъпът до комплекса е организиран от югозапад чрез контролирана система. Всяка къща разполага със самостоятелен двор, озеленена площ и инфинити басейн. Функционално всяка вила включва четири спални със самостоятелни бани, дневна зона с кухня, тоалетна за гости, мокро помещение и склад. Дневната се отваря към покрита лятна кухня и веранда с басейн, създавайки плавен преход между вътрешното и външното пространство. Материалите – естествен камък, дърво и стъкло – свързват интериора и екстериора в единна композиция. Подовата настилка преминава навън, обединявайки верандата и зоната на басейна. Акцентните каменни стени в интериора продължават идеята за материална и визуална непрекъснатост. Roha Cape Villas е проект за хармония – между архитектурата и природата, между интимността на частното пространство и безкрая на морския хоризонт.

  • 18.11.2025
  • 106

EN-TRE Studio

Архитект
София