Move Architects

Студио за интериорен дизайн
София

ELBAT

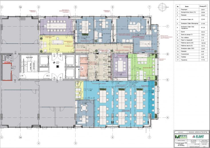
At MoVe Architects, we approach workplace design as an opportunity to create environments that enhance productivity, collaboration, and well-being. Our latest project, ELBAT, exemplifies this philosophy through a refined interplay of functionality, aesthetics, and innovative materiality. As both interior designers and project managers, we ensured that every element was thoughtfully considered, resulting in a space that not only meets but surpasses contemporary workplace expectations. A Holistic Approach to Workplace Design From concept to completion, ELBAT was envisioned as a dynamic workspace that seamlessly integrates form and function. The design fosters a balance between openness and privacy, encouraging collaboration while maintaining areas for focused work. Material selection played a pivotal role, with sustainable and high-quality finishes enhancing both aesthetics and durability. Key Design Elements User-Centric Layout: A spatial configuration designed to optimize comfort, efficiency, and movement within the office. Material Innovation: A curated selection of finishes that marry sustainability with visual and tactile sophistication. Integrated Project Management: A seamless execution process that ensured cohesion from initial concept to final implementation. Overcoming Challenges Every project presents unique challenges, and ELBAT was no exception. The constraints of tight timelines and intricate detailing required a high level of precision and coordination. Through close collaboration with our team and trusted partners, we navigated these complexities, ensuring that quality was never compromised. The Result The completed ELBAT project stands as a testament to MoVe Architects’ commitment to excellence in workplace design. The 500 sq.m. interior reflects a refined balance of sophistication and functionality, reinforcing our dedication to crafting spaces that inspire and perform. For a closer look at this transformation, explore our work and join the conversation on the future of workplace design./ В MoVe Architects възприемаме проектирането на работни пространства като възможност да създадем среди, които повишават продуктивността, сътрудничеството и благосъстоянието. Нашият най-нов проект, ELBAT, олицетворява тази философия чрез изтънчено взаимодействие между функционалност, естетика и иновативна материалност. Като интериорни дизайнери и ръководители на проекта, ние се погрижихме всеки елемент да бъде внимателно обмислен, създавайки пространство, което не само отговаря, но и надхвърля очакванията за съвременна работна среда. Холистичен подход към дизайна на работни пространства От концепцията до реализацията, ELBAT беше замислен като динамично работно място, което безпроблемно интегрира форма и функция. Дизайнът постига баланс между отвореност и уединение, като насърчава сътрудничеството, но също така предлага пространства за фокусирана работа. Изборът на материали играе ключова роля — устойчиви и висококачествени покрития допринасят както за естетиката, така и за дълготрайността на интериора. Основни елементи на дизайна Ориентирано към потребителя разпределение: Пространствена конфигурация, създадена за оптимизиране на комфорта, ефективността и движението в офиса. Иновации в материалите: Подбрана селекция от покрития, които съчетават устойчивост с визуална и тактилна изтънченост. Интегрирано управление на проекта: Безпроблемен процес на изпълнение, който осигурява последователност от първоначалната идея до финалната реализация. Преодоляване на предизвикателства Всеки проект носи със себе си уникални предизвикателства, а ELBAT не беше изключение. Ограниченията, свързани със стегнати срокове и сложни детайли, изискваха високо ниво на прецизност и координация. Благодарение на тясното сътрудничество с нашия екип и доверени партньори, успяхме да преодолеем тези усложнения, без да правим компромис с качеството. Резултатът Завършеният проект ELBAT е доказателство за стремежа на MoVe Architects към съвършенство в дизайна на работни пространства. Интериорът от 500 кв.м. отразява изтънчен баланс между елегантност и функционалност, затвърждавайки нашата отдаденост към създаването на пространства, които вдъхновяват и работят ефективно. За да разгледате тази трансформация отблизо, разгледайте нашето портфолио и се включете в разговора за бъдещето на работните пространства.

  • 16.04.2025
  • 347

Move Architects

Студио за интериорен дизайн
София