ATG Design

Архитект
София

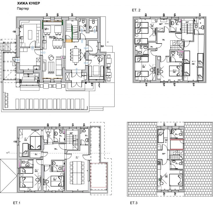
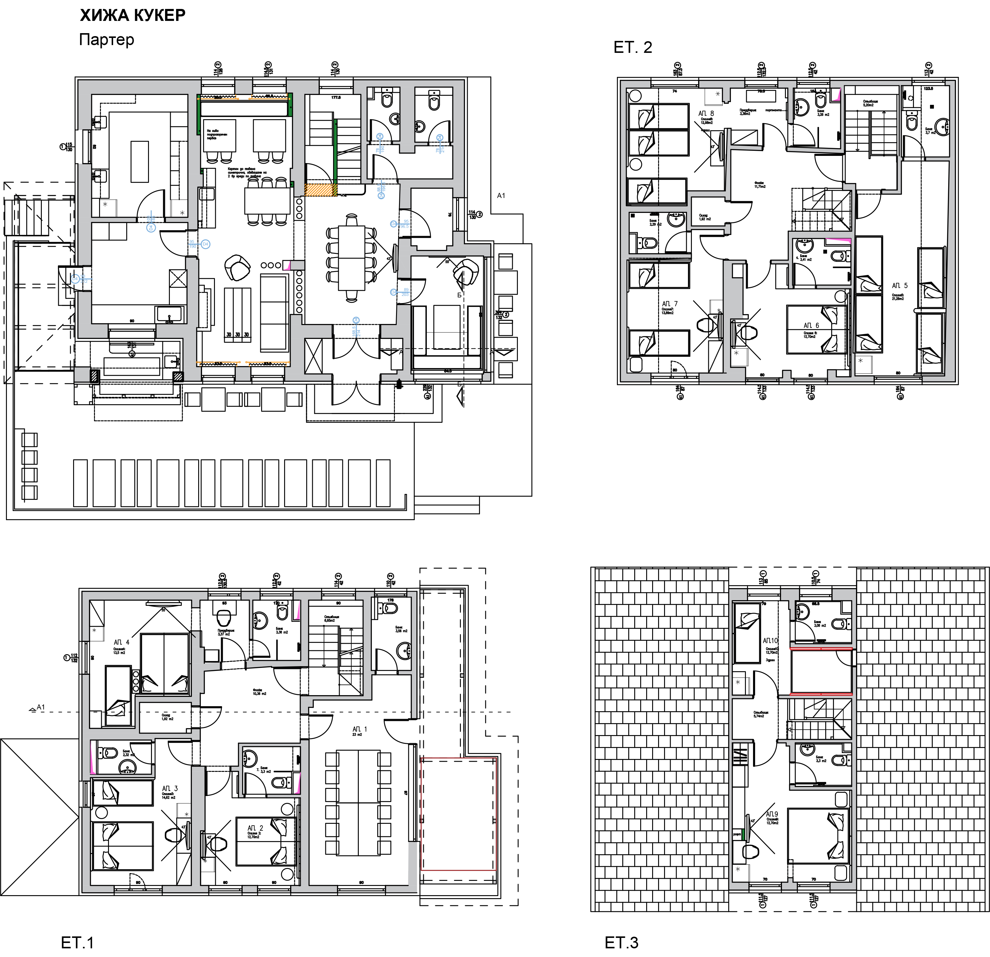
Хижа Кукер

Изцяло реновираната Хижа Кукер се състои от 10 стаи, всяка със собствена баня, обща част с ресторант, зала за организирани събития и обширна външна част. Внесохме доза уют, креативност и цвят във всяко помещение, като навсякъде темата беше природата. Защото вътрешните пространства не трябва да се откъсват от нея, а да я допълват. Важно условие беше да запазим част от мебелите, като им вдъхнем нов живот и ги интегрираме по подходящ начин във всяко помещение. The fully renovated Kuker Hut consists of 10 rooms, each with its own bathroom, a common area with a restaurant, a hall for organized events, and a spacious outdoor area. We brought a sense of warmth, creativity, and color into every room, with nature as the central theme throughout. Because interior spaces shouldn’t detach from nature—they should complement it. An important requirement was to preserve some of the existing furniture, giving it new life and integrating it thoughtfully into each room.

  • 16.09.2025
  • 460

ATG Design

Архитект
София