ATG Design

Архитект
София

Проект Т9

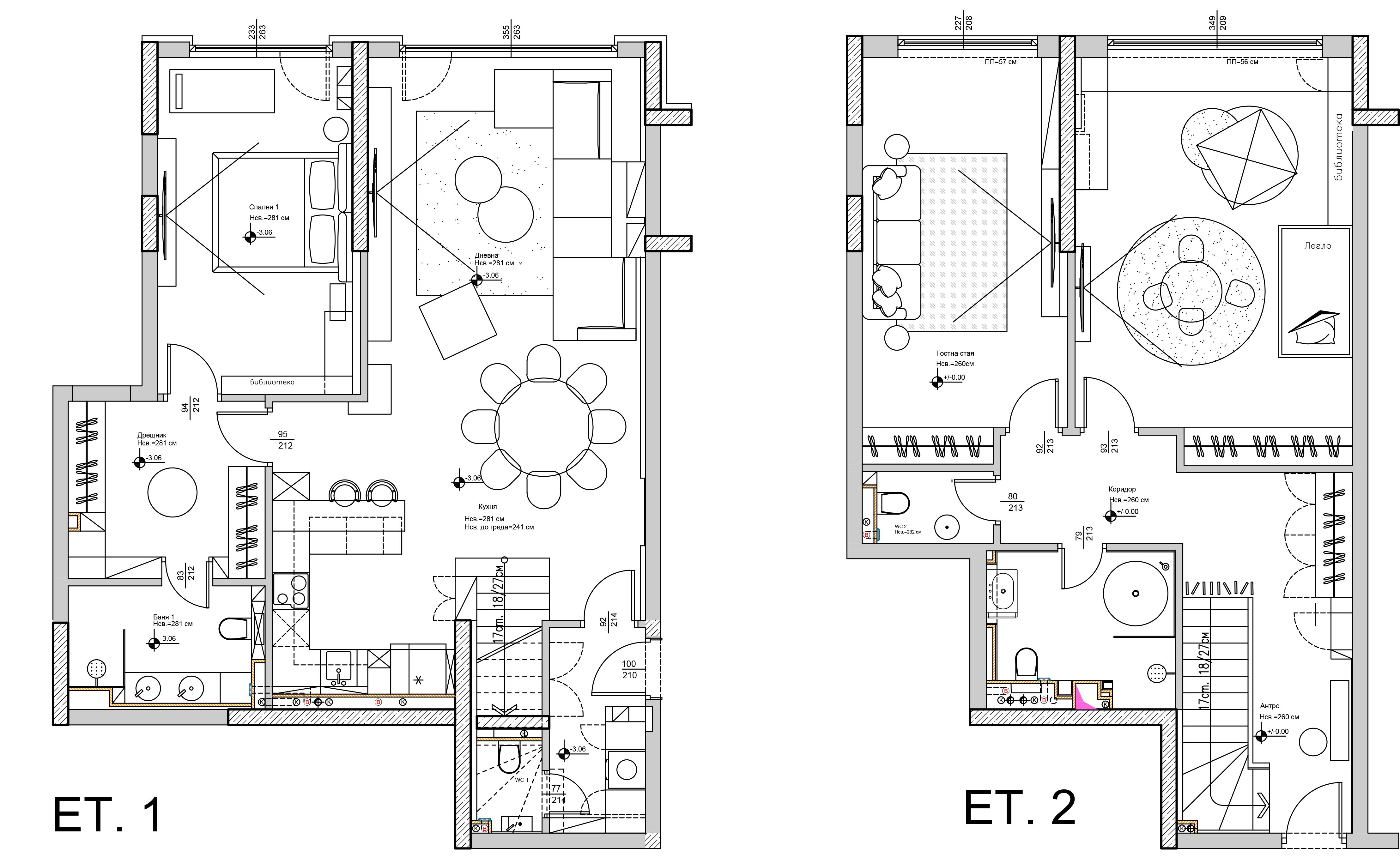
Този просторен мезонет впечатлява с внимателно подбрани материали и текстури, които оформят характерен и стилен интериор със собствена идентичност. Използвани са както мебели от утвърдени италиански брандове, така и специално проектирани елементи, съобразени с конкретното пространство. Комбинацията от тапети с различни текстури, циментобетонът по таваните и пода, акцентното осветление, мекото дърво и металните елементи присъстват във всички помещения и създават интериор, който е едновременно модерен и хармоничен. This spacious maisonette impresses with carefully selected materials and textures that shape a distinctive and stylish interior with its own identity. It features both furniture from established Italian brands and custom-designed elements tailored to the specific space. The combination of textured wallpapers, cement concrete on the ceilings and floors, accent lighting, warm wood, and metal details appears throughout all rooms, creating an interior that is both modern and harmonious.

  • 16.09.2025
  • 283

ATG Design

Архитект
София