Cache atelier

Архитект
София

офис пространство М / Office Space M

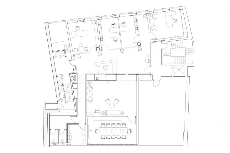
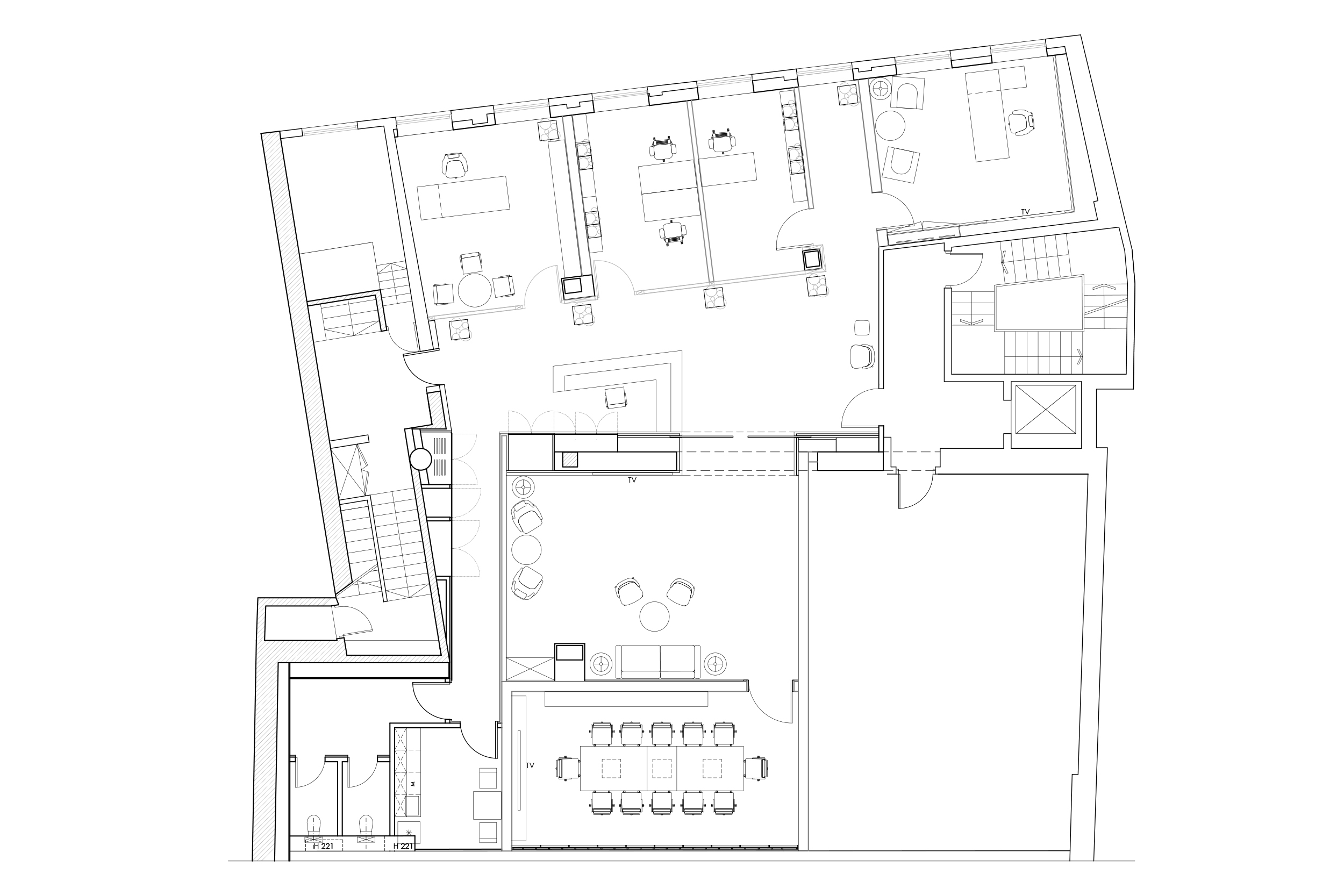
In the office, classical elegance is seamlessly blended with contemporary functionality. A refined palette of warm walnut tones, accented by bold touches of petrol blue, creates a sophisticated yet welcoming atmosphere that balances luxury with everyday practicality. The layout includes a reception area, spaces for informal meetings, a boardroom, and several private offices, all thoughtfully arranged to support a variety of work styles. The strategic use of walnut textures introduces a sense of timeless refinement and envelops the space in a rich, comfortable ambience, while the petrol blue accents inject a modern, dynamic character. Spatial fluidity is achieved through the consistent use of materials and detailing, as well as strategically placed sliding partitions. These allow different zones to be easily separated or combined, offering flexibility and enhancing the overall dynamics of the office environment. / В офисното пространство класическата елегантност е хармонично съчетана със съвременна функционалност. Изискана палитра от топлите тонове на ореха, подчертана със смели акценти в петролено синьо, създава изтънчена, но приветлива атмосфера, която балансира между класическа елегантност и модерен прочит. Разпределението включва рецепция, зони за неформални срещи, заседателна зала и няколко индивидуални офиса, внимателно организирани, за да отговорят на различни стилове на работа. Ореховите ламперии внасят усещане за непреходна елегантност и обгръщат пространството с богата и комфортна среда, докато акцентите в петролено синьо добавят модерен и динамичен характер. Плавността на пространствата е постигната чрез последователното използване на материали и детайли, както и чрез стратегически разположени плъзгащи прегради. Те позволяват различните зони лесно да бъдат разделяни или обединявани, осигурявайки гъвкавост и подпомагайки динамиката на офисната среда.

  • 09.01.2026
  • 105

Cache atelier

Архитект
София