Cache atelier

Архитект
София

Work Factory

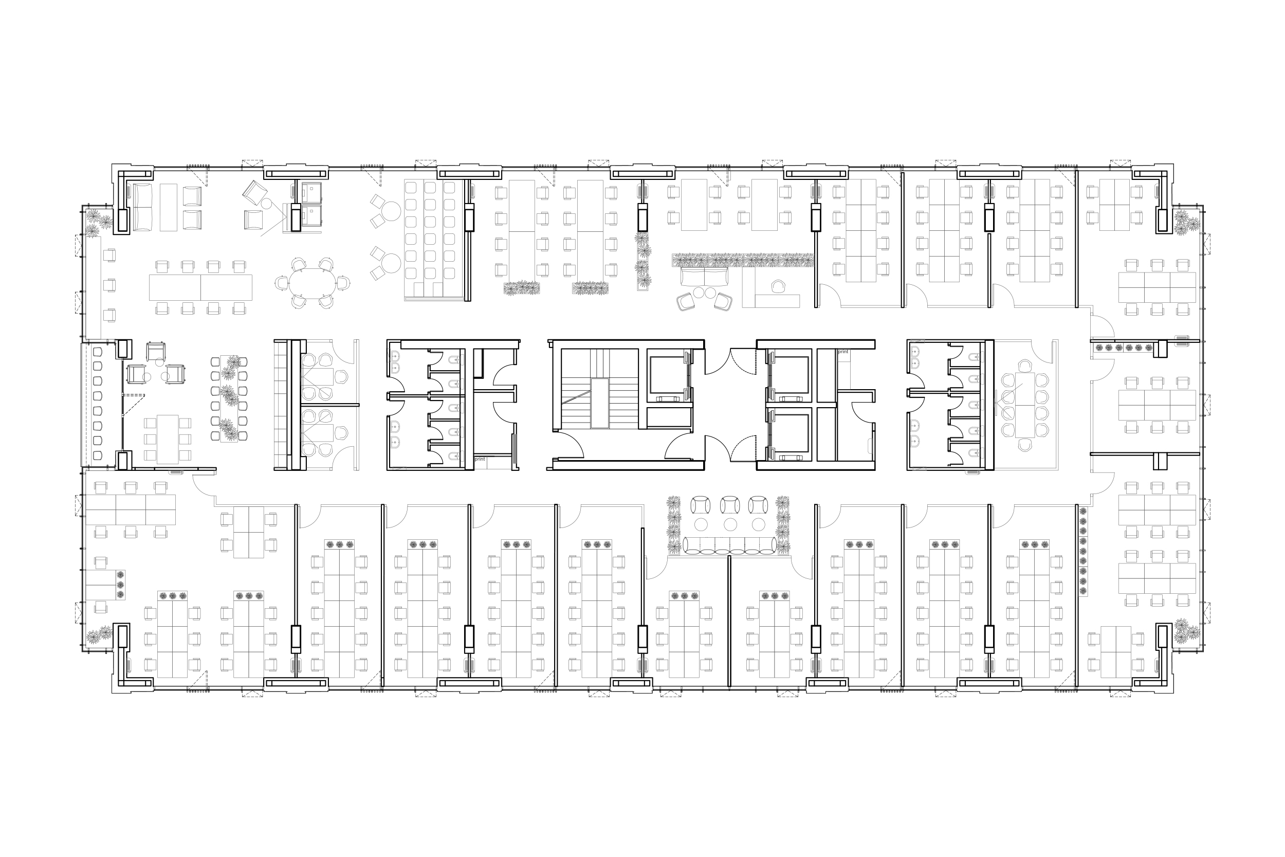
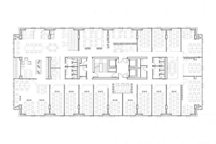
At its core, Work Factory offers a dynamic array of environments tailored to modern work styles. Enclosed team rooms of varying sizes provide privacy and focus, while bookable meeting rooms help seamless collaboration. The space's centrepiece is its vibrant social area, a hub for networking, gatherings, and events, designed to inspire interaction and innovation. Drawing inspiration from industrial aesthetics, Work Factory boasts a robust character defined by rough metal claddings, minimalist lighting, and exposed ceilings and ducts. Contrasting this industrial vibe, a wooden-floored touch imbues warmth and comfort, complemented by an eclectic mix of furnishings that evoke a homely atmosphere. Custom-curated, quirky graphic materials lend a gallery-like ambience to common areas, creating an evolving canvas. / В своята същност Work Factory предлага динамично разнообразие от среди, съобразени със съвременните начини на работа. Обособените екипни стаи с различни размери осигуряват уединение и концентрация, а резервируемите заседателни зали подпомагат безпроблемното сътрудничество. Централният акцент на пространството е неговата оживена социална зона – притегателен център за нетуъркинг, срещи и събития, проектиран да вдъхновява взаимодействие и иновации. Черпейки вдъхновение от индустриалната естетика, Work Factory се отличава със силен характер, оформен от груби метални облицовки, минималистично осветление и открити тавани и инсталации. В контраст с този индустриален дух, подовете от дърво внасят топлина и уют, допълнени от еклектична селекция от мебели, които създават домашна атмосфера. Специално подбрани, закачливи графични елементи придават на общите пространства усещане за галерия, превръщайки ги в постоянно развиващо се платно.

  • 09.01.2026
  • 102

Cache atelier

Архитект
София