Cache atelier

Архитект
София

TBS Academy

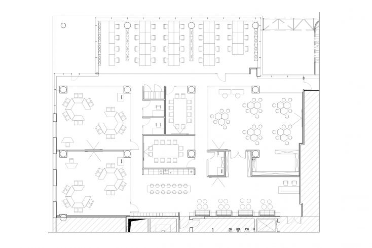
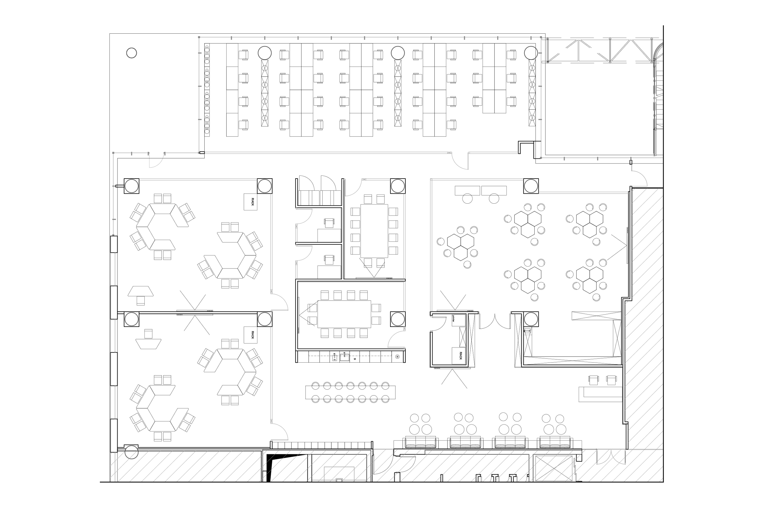
The space combines zones with classical office environment combined wirh multiple areas for education in the field of IT technologies. The design incorporates flexible training rooms tailored for young adults (ages 20 and up), ensuring these spaces can adapt to various educational activities. A standout feature is a vibrant, flexible room dedicated to Telelink's initiative with young children, fostering their initial explorations into technology. This bright and inviting space is designed to be exceptionally child-friendly and boost creativity. At the heart of the new extension lies a grand social area positioned at the entrance. This welcoming hub uniquely brings together regular employees, young trainees, and children, fostering a sense of community and shared purpose. The overall aesthetic of the space is characterized by a light tonality, subtly enhanced with bright colour accents and warm touches of wood, particularly within the expansive social area, creating an inviting and inspiring atmosphere / Пространството съчетава зони с класическа офис среда и множество пространства за обучение в областта на ИТ технологиите. Дизайнът включва гъвкави обучителни зали, съобразени с млади хора (на възраст 20+), като гарантира, че тези пространства могат да се адаптират към различни образователни дейности. Отличителен елемент е цветна и многофункционална зала, посветена на инициативата на Telelink с малки деца, която насърчава първите им стъпки в света на технологиите. Това светло и приветливо пространство е проектирано така, че да бъде подходящо за деца и да стимулира креативността им. В сърцето на пространстворо се намира просторна социална зона. Този приветлив център обединява редовни служители, обучаващи се и деца, като насърчава усещане за общност и споделена цел. Цялостната естетика на пространството се характеризира със светла тоналност, фино подчертана с ярки цветни акценти и топли дървесни елементи, особено в обширната социална зона, създавайки вдъхновяваща и гостоприемна атмосфера.

  • 09.01.2026
  • 108

Cache atelier

Архитект
София